Company Logo

31 Emerald Downs , Three Way, TN 38343

$325,900
  • 31 Emerald Downs , Three Way, TN 38343 Main Photo

20 Total Photos [Click to View All]

Active
BEDS3 BATHS2 full MLS#2505790
STATUSActive PROPERTY TYPEResidential - Single Family SUBDIVISIONWinchester Place

Property Description

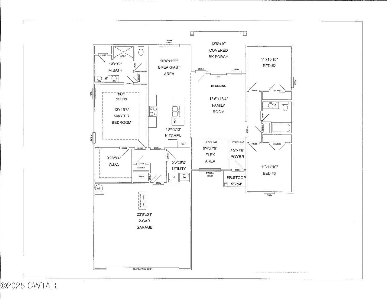
THE AFFIRMED: Great new 3 bedroom 2 bath plan located in the Winchester Place Subdivision. This new home features 10 ft. ceilings, lots of upgraded flooring throughout, stainless kitchen appliances, QUARTZ kitchen countertops and bathroom vanity tops, under cabinet kitchen lighting, lots of trim & mouldings throughout, 2' faux wood blinds on the windows, and much much more. BONUS BONUS, THIS HOME QUALIFIES FOR THE RD 100% LOAN FINANCING PROGRAM!!! CALL KENNY @ 731-444-1164 FOR MORE DETAILS AND TO SET UP YOUR PRIVATE SHOWING!!!

31 Emerald Downs | MLS# 2505790

This single family home located at 31 Emerald Downs , Three Way, TN 38343 is currently listed for sale with an asking price of $325,900. This property has 3 bedrooms and 2 full baths. Emerald Downs is located in the Winchester Place subdivision. Search Winchester Place real estate on www.clhomes.com today.

Property Features

Property Type: Residential - Single Family
Cooling: Ceiling Fan(s), Central Air
Fireplaces: 1
Garage: 2 car attached
Heating: Central, Forced Air
Lot Size: 80 x 155
Stories: 1.0

Feature Descriptions

Appliances: Dishwasher, Disposal, Electric Range, Electric Water Heater
Association/Condo Fee: 250
Days on Site: 90
Exterior: Brick
Exterior Amenities: Rain Gutters
Fireplace: Great Room, Ventless
Flooring: Carpet, Ceramic Tile, Luxury Vinyl
HOA: Yes
Interior Amenities: Ceiling Fan(s), Commode Room, Crown Molding, Double Vanity, Eat-in Kitchen, Fiber Glass Shower, Kitchen Island, Knocked Down Ceilings, Open Floorplan, Pantry, Tray Ceiling(s), Walk-In Closet(s)
Laundry: Laundry Room
Lot Dimensions: 80 x 155
Parcel #: 012J E 313.00
Parking: Garage Door Opener, Garage Faces Front
Utilities: Cable Available, Electricity Connected, Fiber Optic Available, Phone Available, Sewer Connected, Water Connected, Underground Utilities
Windows: Blinds

Listed By / Shown By

Listed By

Agency Name: Five Star Real Estate Services

Shown By

Agency Title: Crye-Leike Real Estate Services
Agency Phone: 866-253-4666

IDX logo

Source: CWTAR MLS

Estimate Your Payment

Estimated Payment

$ 820.37 per month $725.31 Principal & Interest $0.00 Property Tax (data not provided by mls) $95.05 Homeowner's Insurance

Change Payment Information

%
years/fixed
yearly
yearly (est.)
(Payments are an estimate and may vary by lender)

Login to My Homefinder

Pixel