Company Logo
Refine Search

262 Estoria Street, Atlanta, GA 30316

$319,900
  • 262 Estoria Street, Atlanta, GA 30316 Main Photo

5 Total Photos [Click to View All]

Active
LOT SIZE 0.060 acres MLS#10671641
STATUSActive PROPERTY TYPELand - Residential SUBDIVISIONCabbagetown NEIGHBORHOODAtlanta

Property Description

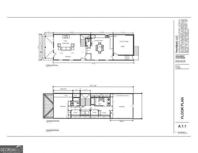
RARE CABBAGETOWN VACANT LOT - Thanks for your interest in this developed ready-to-build lot in the heart of Cabbagetown on Estoria Street. Set atop a hill overlooking the city with rear alley access, the lot is cleared, has new brick sidewalks and granite curbs, a new sewer tap, a brand new retaining wall and architectural plans for a 1960sf 2/2.5 home that is fully approved with the Urban Design Commisison and the Cabbagetown Historic Association. All a new owner needs to do is submit construction plans for final building permit at the City of Atlanta which is a straight-forward and simple process that takes 4-6 weeks. The property has approximately $50,000 of cash invested in the required sidewalks, granite curbs, sewer taps, retaining walls, surveys, architectural plans, and permitting costs. Add to that the year+ of hard work to get to the point where the homes is through the hard part of the permitting process. The value of the home, once built, will be ~1M so this is a low risk and high reward opportunity to build a dream home or to have a profitable investment project in one of the best and most central historic neighborhoods in the city.

262 Estoria Street | MLS# 10671641

This land located at 262 Estoria Street, Atlanta, GA 30316 is currently listed for sale with an asking price of $319,900. The property has approximately 0.06 Acres. Search Atlanta real estate on www.clhomes.com today.

Property Features

Property Type: Land - Residential
Lot Size: 0.06 Acres
Taxes: $0

Feature Descriptions

Amenities: Near Public Transport, Walk To Schools, Near Shopping
Days on Site: 111
RoadFrontage: City Street
Sewer: Other
Structures: None
Utilities: None
Water: Other

Local Schools

High School: MH Jackson Jr
Middle School: King
Elementary School: Parkside

Listed By / Shown By

Listed By

Agency Name: RE/MAX Metro Atlanta Cityside
Agency Phone: 404-371-4419

Shown By

Agency Title: Crye-Leike Real Estate Services
Agency Phone: 866-253-4666

IDX logo

Source: GAMLS

Estimate Your Payment

Estimated Payment

$ 805.26 per month $711.96 Principal & Interest $0.00 Property Tax (data not provided by mls) $93.30 Homeowner's Insurance

Change Payment Information

%
years/fixed
yearly
yearly (est.)
(Payments are an estimate and may vary by lender)

Login to My Homefinder

Pixel